Mieszkanie OPTI 
R/OP-28/1

Status Rezerwacja
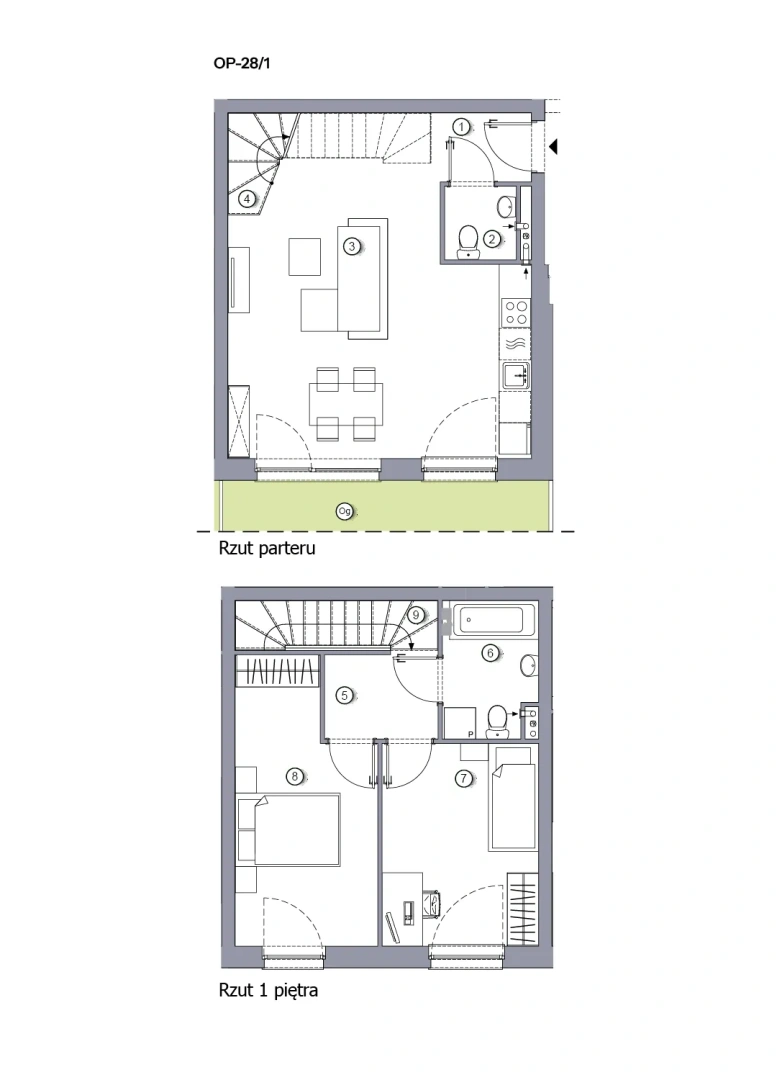
Powierzchnia 66.28 m2
Liczba pokoi 3
Pow. ogrodu/balkonu 52.90 m2
Kod lokalu R/OP-28/1
Termin Gotowe
Wykończenie pod klucz Nie
Pompa ciepła i fotowoltaika Tak

Typ budynku Budynek Opti

Opti OPTI to szeregowiec z dwupoziomowymi mieszkaniami o powierzchni 66 lub 79 m2. W każdym segmencie znajdują się 4 mieszkania, które wyposażone są we wspólną instalację fotowoltaiczną i pompę ciepła, co niesie za sobą wiele korzyści zarówna pod względem ekonomicznym, jak i ekologicznym.

Znajdziemy tu rozwiązania 3 lub 4 pokojowe. W ramach jednego wspólnego wejścia znajdują się cztery mieszkania oraz wspólny kocioł grzewczy dla wszystkich czterech mieszkań. Na parterze każdego z mieszkań znajduje się salon z aneksem kuchennym oraz toaleta. Na piętrze z kolei łazienka oraz dwie lub trzy sypialnie.

Więcej ofert Podobne mieszkania

Lokal Piętro Metraż Pokoje Status Cena
OP-24 / 1 - 66.36 m2 3 Sprzedane - Szczegóły
OP-24 / 2 - 66.38 m2 3 Rezerwacja - Szczegóły
OP-24 / 3 - 66.22 m2 3 Rezerwacja - Szczegóły
OP-27 / 1 - 66.36 m2 3 Sprzedane - Szczegóły
OP-27 / 2 - 66.51 m2 3 Dostępny 586 704 zł Szczegóły
OP-27 / 3 - 66.69 m2 3 Rezerwacja - Szczegóły
OP-26 / 1 - 66.32 m2 3 Sprzedane - Szczegóły
OP-26 / 2 - 66.42 m2 3 Dostępny 586 752 zł Szczegóły
OP-26 / 3 - 66.51 m2 3 Dostępny 586 704 zł Szczegóły
OP-25 / 1 - 66.36 m2 3 Sprzedane - Szczegóły

Biuro Sprzedaży

Biuro Sprzedaży

Doradca Linea Deweloper

Rezerwacja - R/OP-28/1

Skontaktuj się z nami

Pole wymagane
Pole wymagane
Pole wymagane
Pole wymagane