Mieszkanie Villa
R/V-22/5

Status Dostępny
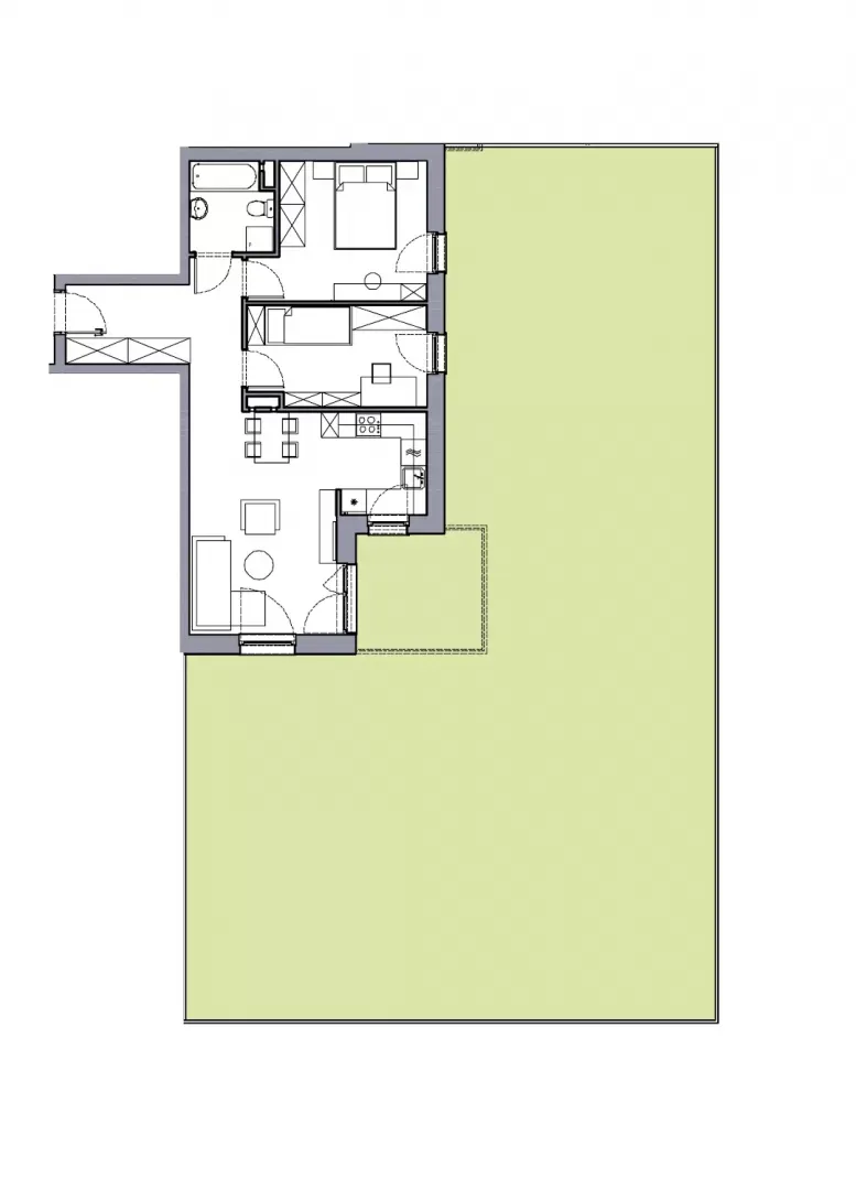
Powierzchnia 58.09 m2
Liczba pokoi 3
Pow. ogrodu/balkonu 187.12 m2
Kod lokalu R/V-22/5
Termin 31.03.2027
Wykończenie pod klucz Nie
Pompa ciepła i fotowoltaika Tak
566 688
9 755 zł/m2

Galeria

Typ budynku Budynek Villa Eko

VILLA EKO to nowa odsłona dobrze znanego naszym klientom budynku Villa. Zmieniliśmy nie tylko elewację i kubaturę budynku, ale przede wszystkim wyposażyliśmy go w pompy ciepła i panele fotowoltaicze. To dzięki nim 100% energii potrzebnej do ogrzania mieszkań pochodzi z zielonego źródła. Co ważne, utrzymaliśmy kameralny charakter budynku z niewielką ilością mieszkań, tym samym zachowując cechy zabudowy willowej. Tak jak w przypadku swojej poprzedniczki i tu na parterze znajdują się mieszkania z ogrodami, a na piętrach z przestronnymi balkonami, a mieszkania zlokalizowane na I i II piętrze posiadają indywidualne wiaty gospodarcze przy wejściu do budynku.

Więcej ofert Podobne mieszkania

Lokal Piętro Metraż Pokoje Status Cena
OP-24 / 1 - 66.36 m2 3 Sprzedane - Szczegóły
OP-24 / 2 - 66.38 m2 3 Rezerwacja - Szczegóły
OP-24 / 3 - 66.22 m2 3 Rezerwacja - Szczegóły
OP-27 / 1 - 66.36 m2 3 Sprzedane - Szczegóły
OP-27 / 2 - 66.51 m2 3 Dostępny 586 704 zł Szczegóły
OP-27 / 3 - 66.69 m2 3 Rezerwacja - Szczegóły
OP-26 / 1 - 66.32 m2 3 Sprzedane - Szczegóły
OP-26 / 2 - 66.42 m2 3 Dostępny 586 752 zł Szczegóły
OP-26 / 3 - 66.51 m2 3 Dostępny 586 704 zł Szczegóły
OP-25 / 1 - 66.36 m2 3 Sprzedane - Szczegóły

Biuro Sprzedaży

Biuro Sprzedaży

Doradca Linea Deweloper

Rezerwacja - R/V-22/5

Skontaktuj się z nami

Pole wymagane
Pole wymagane
Pole wymagane
Pole wymagane