Mieszkanie VILLA
R/V-29/5

Status Sprzedane
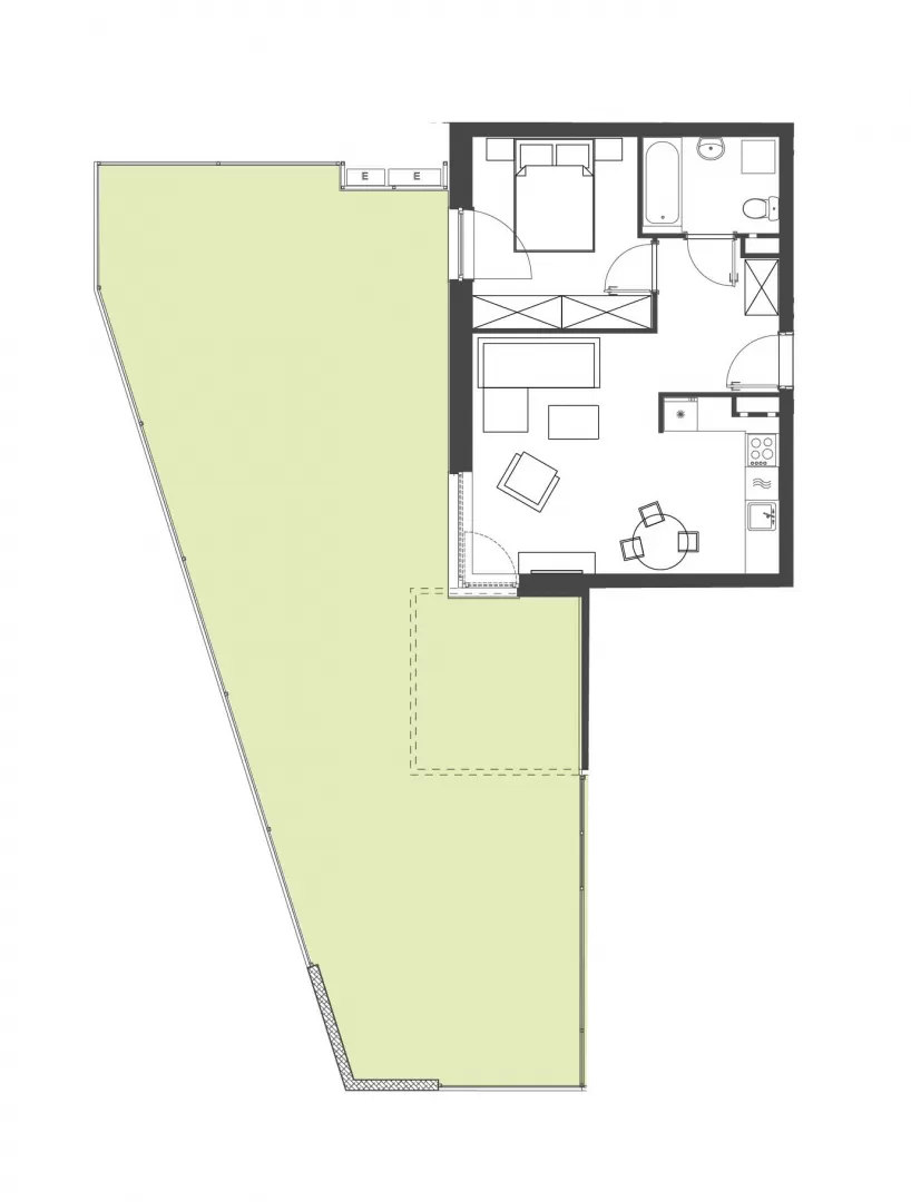
Powierzchnia 41.55 m2
Liczba pokoi 2
Pow. ogrodu/balkonu 94.49 m2
Kod lokalu R/V-29/5
Termin Gotowe
Wykończenie pod klucz Nie
Pompa ciepła i fotowoltaika Tak

Galeria

Typ budynku Budynek Villa Eko

VILLA EKO to nowa odsłona dobrze znanego naszym klientom budynku Villa. Zmieniliśmy nie tylko elewację i kubaturę budynku, ale przede wszystkim wyposażyliśmy go w pompy ciepła i panele fotowoltaicze. To dzięki nim 100% energii potrzebnej do ogrzania mieszkań pochodzi z zielonego źródła. Co ważne, utrzymaliśmy kameralny charakter budynku z niewielką ilością mieszkań, tym samym zachowując cechy zabudowy willowej. Tak jak w przypadku swojej poprzedniczki i tu na parterze znajdują się mieszkania z ogrodami, a na piętrach z przestronnymi balkonami, a mieszkania zlokalizowane na I i II piętrze posiadają indywidualne wiaty gospodarcze przy wejściu do budynku.

Więcej ofert Podobne mieszkania

Lokal Piętro Metraż Pokoje Status Cena
LG-20 / 2 P 37.23 m2 2 Sprzedane - Szczegóły
LG-20 / 3 P 37.23 m2 2 Sprzedane - Szczegóły
LG-20 / 5 P 40.36 m2 2 Sprzedane - Szczegóły
LG-20 / 6 P 37.23 m2 2 Sprzedane - Szczegóły
LG-20 / 7 P 37.42 m2 2 Sprzedane - Szczegóły
LG-20 / 9 1 37.23 m2 2 Sprzedane - Szczegóły
LG-20 / 10 1 37.23 m2 2 Sprzedane - Szczegóły
LG-20 / 12 1 40.36 m2 2 Rezerwacja - Szczegóły
LG-20 / 13 1 37.23 m2 2 Sprzedane - Szczegóły
LG-20 / 14 1 37.23 m2 2 Sprzedane - Szczegóły

Biuro Sprzedaży

Biuro Sprzedaży

Doradca Linea Deweloper

Rezerwacja - R/V-29/5

Skontaktuj się z nami

Pole wymagane
Pole wymagane
Pole wymagane
Pole wymagane