Typ budynku Budynek Opti
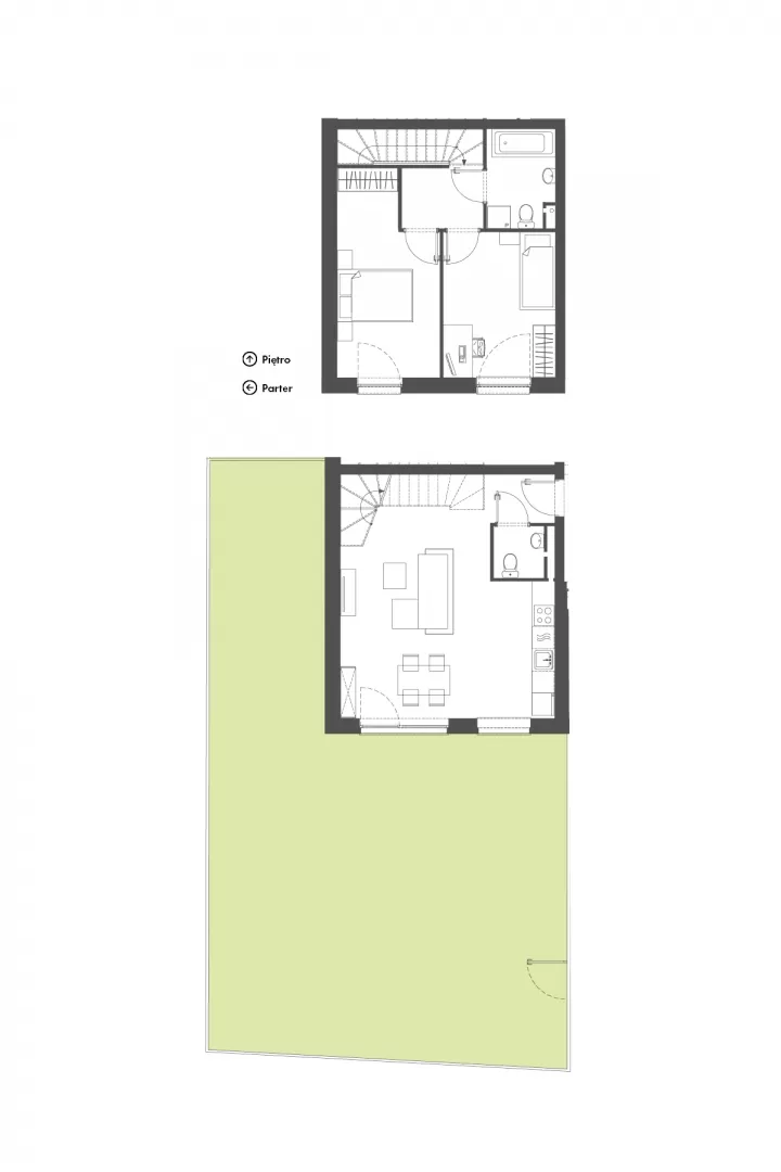
To szeregowiec z dwu-poziomowymi mieszkaniami. Każdy lokal ma tu swój ogród. Znajdziemy tu rozwiązania 3 lub 4 pokojowe. W ramach jednego wspólnego wejścia znajdują się cztery mieszkania o powierzchni 66 lub 79 m2 oraz wspólny kocioł grzewczy dla wszystkich czterech mieszkań. Na parterze każdego z mieszkań znajduje się salon z aneksem kuchennym oraz toaleta. Na piętrze z kolei łazienka oraz dwie lub trzy sypialnie. Mieszkanie posiada możliwość zamontowania kominka i rolet zewnętrznych na parterze.

